Wohnimmobilie > Etagenwohnung
Zu Vermieten
Urgemütlich, toll geschnitten und in Traumlage (nähe Fischteiche)
575 €
2018-90604
1992
73 m²
3
-
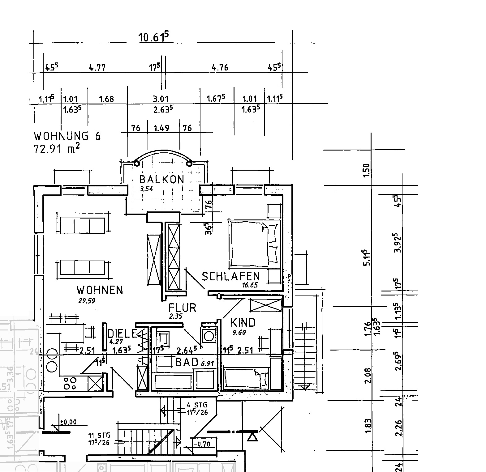
Bei dieser Wohnung handelt es sich um eine urgemütliche 3-Zimmer-Wohnung in Traumlage von Paderborn.
Die Wohnfläche von knapp 73 m² verteilt sich gem. des gezeigten Grundrisses.
Zur Wohnung gehören ein eigener, separater Kellerraum, ein Stellplatz für Waschmaschine & Trockner sowie ein Kfz-Stellplatz direkt vor dem Haus.
Die Bilder sind von der Übergabe der Wohnung an die aktuelle Mietpartei.
Gesucht wird eine Einzelperson oder ein nettes Paar. Eine hervorragende Bonität wird natürlich vorausgesetzt.
Die Wohnung wird zum Ende Februar frei, so dass eine frühestmögliche Anmietung ab dem 01.03.2026 möglich ist.
Wenn wir Ihr Interesse für diese tolle Wohnung geweckt haben, würden wir uns sehr über eine Anfrage freuen. Bitte machen Sie eine Gehaltsangabe und teilen uns mit, mit wieviel Personen Sie einziehen möchten.
– 3 Zimmer, Kochn., Diele, Bad, Balkon, Keller
– WFL: 72,91 m²
– KM: 575,– € – Stellplatz: 25,– € – NK: 150,– € – HZ (Gas-NW-System): selbst über Westfalen Weser
– Strom: selbst über Versorger nach Wahl
– Energieausweis: 83,9 kwh(m²-a) – Energieeffizienzklasse: C
– Kaution: 3 Netto-Kaltmieten
– Tierhaltung: nach Vereinbarung
– frei ab: 01.03.2026 -
Flächen
- Wohnfläche: 72,91 m²
- Zimmer insgesamt: 3
- Schlafzimmer: 1
- Badezimmer: 1
- Etagen: 3
- Etage: 1
- WG-geeignet: nein
- Außenstellplätze: 1
- Balkone: 1
Zustand & Erschließung
- Baujahr: 1992
- Zustand: gepflegt
- Keller: voll unterkellert
Sonstiges
- Immobilie ist verfügbar ab: 01.03.2026
- Wohnberechtigungsschein erforderlich: nein
-
- Heizungsart: Zentralheizung
- Befeuerung: Gas, Fernwärme
- Badausstattung: Dusche, Badewanne
-
- Energieausweis-Art: Verbrauch
- Energieverbrauchskennwert: 83,90 kWh/(m²*a)
- Primärenergieträger: Gas, Fernwärme
- Energieeffizienzklasse: C
- Energieausweis-Jahrgang: ab Mai 2014
-
- Nettokaltmiete: 575 €
- monatl. Betriebs-/Nebenkosten: 150 €
- Gesamtmiete: 725 €
- Kaution: 3 Netto-Kaltmieten
- Außenstellplatzmiete: 25 €













































